Прозоре ціноутворення на ремонт
у м. Київ та обл.

Ми не просто називаємо ціну за квадратний метр, ми обгрунтовуємо кожен пункт кошторису

Отримайте детальний розрахунок робіт та матеріалів, ще до початку вашого ремонту

Створення фундаменту

вашого інтер'єру

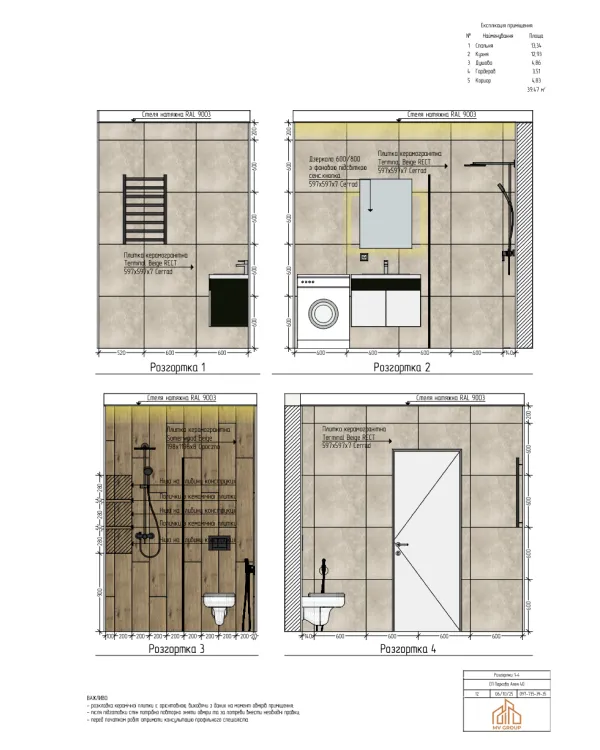
Дизайн-проєкт «Технічний»
Склад:

Технічні креслення та специфікація матеріалів

Терміни:

Від 14 до 30 робочих днів

Ціна:

$25/м²



50% – аванс, 50% – при видачі фінальних креслень

Дизайн-проєкт «Повний»
Склад:

3D-візуалізація, всі технічні креслення та специфікація

Терміни:

від 30 до 60 робочих днів

Ціна:

$35/м²

50% – аванс, 50% – при видачі фінальних креслень

Детальний кошторис

Будівництво чи ремонт без детального розрахунку – це завжди ризик. Ми працюємо прозоро та системно, тому перший крок – чітке фінансове планування. Завдяки кошторису ми можемо уникнути непередбачених витрат у процесі та зафіксувати всі роботи, матеріали, обсяги, вартість ремонту в договорі ще до його початку.

Контроль бюджету

Ви відразу бачите реальну вартість проєкту

Прозорість співпраці

Фіксовані обсяги та зрозуміла структура витрат

Відсутність невідомих витрат

Ніяких “неочікуваних доплат” у процесі роботи

Можливість коригування

Можемо оптимізувати рішення без втрати якості

Ми завжди починаємо саме з кошторису. Детальний кошторис формується індивідуально під ваш об’єкт – квартиру, будинок або комерційне приміщення, на основі дизайн проєкту.

Що входить:
Вартість:
Важливо:

Оберіть свій рівень комфорту

Наведені пакети є орієнтовними та слугують базою для розрахунку. Ви можете комбінувати опції, додавати нові матеріали або змінювати наповнення відповідно до ваших побажань та бюджету – ми створимо індивідуальне рішення саме для вас.

Комфорт
від 550$ м²

Базова якість та надійність. Оптимальний вибір для першого житла або здачі в оренду, де важливо отримати готовий результат без переплат.

Електромонтажні роботи

Розведення точок освітлення (20-25 точок);

Монтаж електрощитка та його збірка;

Розетки та вимикачі (до 55 точок);

Освітлення (на вибір): точкове, люстри (до 10 000 грн), приліжкові бра (до 2 000 грн), накладне трекове освітлення (до 10 м.п)

(На вибір): точкове, люстри (до 10 000 грн), приліжкові бра (до 2 000 грн), накладне трекове освітлення (до 10 м.п) .

Влаштування водопостачання та водовідведення;

Розведення теплої водяної підлоги 25 м2;

Радіатор у спальні класичного монтажу .

Стіни: Вирівнювання; Армування; Фарбування або декоративна штукатурка до 30 м2 (до 2 500 грн/м2 робота+матеріал); Стіна з декоративними елементами (скеля, кількашарова штукатурка, МДФ панелі) .

Підлога: Залиття напівсухої стяжки; Ламінат (до 1200 грн), кварц вініл (до 2000 грн) або паркетна дошка Барлінек (до 2000 грн); Керамограніт 12060, 12020 .

Стеля: Натяжна біла матова з алюмінієвим тіньовим профілем; Підсвітка тіньового профілю; Карниз прихованого монтажу .

Двері: Класичного монтажу (до 25 000 грн) або прихованого монтажу (до 20 000 грн); Ручки; Плінтус МДФ або алюмінієвий .

Душовий трап, подіум з плитки та душове скло;

Душова система звичайного чи прихованого монтажу з термостатом (до 25 000 грн);

Змішувачі до 7000 грн;

Комплект інсталяції (до 25 000 грн);

Гігієнічний душ (до 7000 грн);

Рушникосушка комбінована;

Плитка по всій висоті стін;

Витяжка;

Інтегрована поличка з плитки .

Фреономагістралі до 10 м.п.; Кутники, привіконні планки .

Котел газовий або електричний (до 35 000 грн);

Бойлер (до 10 000 грн);

Кондиціонер (до 20 000 грн);

Дзеркало з лед-підсвіткою;

Підсвітка у ванній;

Тумба та умивальник індивідуального виготовлення;

Корпусні меблі;

Другий санвузол;

Ванна .

Розподіл бюджету на ремонт
36%

Чорнові роботи

15%

Чорнові матеріали

16%

Чистові роботи

28%

Чистові матеріали

5%

Логістика

ФІНАЛЬНИЙ РЕЗУЛЬТАТ КОМФОРТ

Бізнес
650-850 $ м²

Сучасний стиль та покращений комфорт. Використання трендових дизайнерських рішень: тіньові профілі, магнітне світло та преміальне оздоблення стін.

Електромонтажні роботи

Розведення точок освітлення;

Монтаж електрощитка та його збірка;

Розетки та вимикачі Шнайдер Асфора або Седна .

На вибір: точкове; люстри (до 25 000 грн); приліжкові бра (до 5 000 грн); магнітне трекове освітлення, світлові лінії .

Влаштування водопостачання та водовідведення;

Розведення теплої водяної підлоги 25 м2;

Радіатори дизайнерські (до 20 000 грн)

Душовий трап, подіум з плитки та душове скло;

Душова система звичайного чи прихованого монтажу з термостатом (до 25 000 грн);

Змішувачі до 7000 грн;

Комплект інсталяції (до 25 000 грн);

Гігієнічний душ (до 7000 грн);

Рушникосушка комбінована;

Плитка по всій висоті стін;

Витяжка;

Інтегрована поличка з плитки .

Душовий трап, подіум з плитки та душове скло;

Душова система звичайного чи прихованого монтажу з термостатом (до 25 000 грн);

Змішувачі до 7000 грн;

Комплект інсталяції (до 25 000 грн);

Гігієнічний душ (до 7000 грн);

Рушникосушка комбінована;

Плитка по всій висоті стін;

Витяжка;

Інтегрована поличка з плитки .

Фреономагістралі до 20 м.п;

Кутники, привіконні планки

Котел (до 50 000 грн);

Бойлер (до 15 000 грн);

Кондиціонер (до 30 000 грн);

Меблі та сантехніка індивідуального виготовлення;

Ванна .

Розподіл бюджету на ремонт
31%

Чорнові роботи

17%

Чорнові матеріали

14%

Чистові роботи

34%

Чистові матеріали

4%

Логістика

ФІНАЛЬНИЙ РЕЗУЛЬТАТ БІЗНЕС

Преміум
від 850 $ м²

Безкомпромісна якість та інтелектуальні системи. Пакет для тих, хто цінує ексклюзивність: «Розумний будинок», широкоформатний камінь та можливість створення власної SPA-зони.

Електромонтажні роботи

Розведення точок;

Щиток;

Розетки/вимикачі преміум;

Система розумного будинку.

Точкове, люстри, бра, магнітне трекове, світлові лінії, тіньові профілі, акцентні елементи.

Тепла підлога; Дизайнерські або підлогові радіатори .

Окремостояча ванна або душовий трап;

Система прихованого монтажу з термостатом;

Інтегрована кнопка інсталяції з плитки;

Великоформатна плитка;

Витяжка прихованого монтажу у плитці;

Умивальник з мармуру/каменю .

Стіни та підлога: Фарбування, декор. штукатурка, МДФ панелі, шпалери; Паркетна інженерна дошка, паркет; Керамограніт 12060, 270120; Мікроцемент.

Стеля: Гіпсокартонова з тіньовим профілем; Підсвітка; Моторизовані карнизи.

Двері: Прихованого монтажу нестандартного розміру; Плінтус прихованого монтажу або алюмінієвий.

Котел від 50 000 грн;

Сауна; Хамам; Камін.

Розподіл бюджету на ремонт
28%

Чорнові роботи

17%

Чорнові матеріали

11%

Чистові роботи

41%

Чистові матеріали

3%

Логістика

ФІНАЛЬНИЙ РЕЗУЛЬТАТ ПРЕМІУМ

Ціни постійно зростають, встигніть забронювати за поточною вартістю
Зафіксуйте ціну та отримайте приклад детального кошторису та повного дизайн-проєкту
Перевірте якість
до підписання договору

Запрошуємо на діючі об’єкти у вашому місті. Оцініть чистоту, культуру робіт та рівень майстрів наживо. Детальніше про екскурсію

Дякуємо! Ваша заявка отримана

Наш менеджер якнайшвидше зв’яжеться з вами.

А поки ознайомтесь з прикладами реального кошторису та дизайн-проєкту, щоб побачити рівень опрацювання кожної деталі.

Виберіть ваш регіон

Ви вибрали: Київ